"設計是一種職業更因該是一種興趣,設計作品不只是為了讓客戶滿意,更應該、讓自己滿意"
"設計是一種職業更因該是一種興趣,設計作品不只是為了讓客戶滿意,更應該、讓自己滿意"
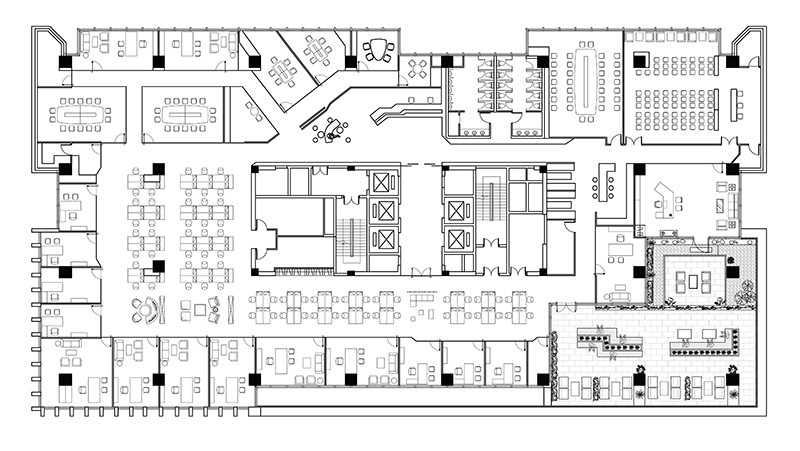
參觀考察過IBM、摩托羅拉手機等全球500強公司的辦公室,你能發覺過去印像中灰色調高進深的辦公空間發生了前所未有的巨大改變,這種辦公室裝修公司十分重視辦公空間的辦公室設計和辦公室室內裝修,空間切分、原材料應用、燈光照明、顏色應用及家俱挑選層面都愈來愈注重。許多辦公室裝修公司仍在寫字樓內設定了大規模的歇息空間、餐區和園林景觀花苑,乃至醫務室、推拿間和健身會所也位居在其中,辦公場地的舒適度在持續提升,辦公室設計也愈來愈個性化。

BDM工程建筑及房間內辦公室設計公司的辦公室設計師陳明覺得,辦公空間事實上是集總體多功能性為一體,并傳送一種日常生活感受,讓使用人在每日繁忙的現實世界中感受到由工程建筑自然環境產生的悠閑自在心情的場地。“中式快餐式”辦公室設計的辦公空間考慮不上職工的心理需求。一個好的辦公室設計師,要為顧客產生和睦的辦公室設計定義,既堅持不懈反映辦公室裝修公司經營的必須,又能在統一詳細的主題風格下富有轉變,為職工提升工作效能造就方便快捷、舒服的自然環境。做了一個辦公室設計有時候便是協助有念頭的顧客完成了一個理想。
辦公室設計計劃方案:時間、價格、辦公室設計水準綜合性性價比高要高
不論是傳統式國營企業、行政機關,還是海外辦公室裝修公司、IT新科技公司、文化傳媒廣告宣傳等當代辦公室裝修公司對辦公空間的要求也不完全一致,當然辦公室設計構思、設計風格也徹底不一樣。但有一點是同樣的,如今顧客規定的已不是單純性的辦公室設計,或簡易的中式快餐式辦公室設計計劃方案。她們更必須為顧客考慮的時間盡可能短、價格在預算金以內、辦公室設計品質高要素綜合性起來佳的計劃方案。像購物一樣,高性價比的大型商場游戲道具產品始終不愁銷售量,綜合性水準好的“交鑰匙”計劃方案也毫無疑問受顧客親睞。一旦把讓客戶滿意做為評定辦公室設計計劃方案好壞的規范,考慮時間較短、價格有效、辦公室設計的計劃方案也將是好的計劃方案,也是非常容易中標底計劃方案。
辦公空間必須量身訂做
沒有一家辦公室裝修公司會喜愛用來就能用的計劃方案,她們都期待獲得一個量身訂做的計劃方案。辦公室裝修公司的知名度、寫作水準、令人滿意服務項目、辦公室設計工作經驗、規范管理全是顧客必須考慮到的。辦公室設計師在剛開始動手能力前,務必要掌握辦公室裝修公司的工作流程,需把工作方面聯絡緊密的單位分配離得近些,那樣有益于提升工作效能。
新科技辦公室裝修公司、傳媒廣告辦公室裝修公司、國營企業、銀行業等不一樣種類的公司擁有 徹底不一樣的要求。比如,摩托羅拉手機、想到等新科技辦公室裝修公司規定最先確保應用作用和工作效能,因此 她們對機電工程、中央空調、綜合布線系統等基礎設施建設的鋪裝上尤其關心,次之才算是表層方式的辦公室室內裝修和裝飾設計。像君士這種文化傳媒辦公室裝修公司,辦公室工作人員較少,本人空間非常大,要從空間、顏色上表述時尚潮流感、填滿創造力及開朗、彈跳感。而對某集團公司總公司,則應用了較多的大理石、深棕色木料和灰黑色調,夾層玻璃和木制感中西合并,表述霸氣側漏、收斂性、委婉、嚴肅認真和運動感。
注重辦公系統
伴隨著智慧實驗室的完成,海外一些辦公室設計時,早已與傳統式辦公室設計有非常大不一樣。全部信息內容都能夠根據互聯網Email、打印機等內部聯系方法完成。辦公系統早已變成辦公室室內裝修需考慮到的關鍵難題。尤其是一些為大型商場游戲道具業務員提前準備的辦公室,取消了每一個人固定不動的坐位,由于她們中的大部分人不用碰面也難以遇到,辦公室的大多數空間被作為商談和溝通交流用的餐區或現磨咖啡座,沿辦公場所的周邊提前準備了安裝完善互聯網和電話插口的隨意坐位。大型商場游戲道具業務員返回辦公室后可隨意選擇坐位,只需接好筆記本就能工作中,極大地提高了空間使用率。
辦公室設計向家居家具辦公室設計看齊
辦公室設計師已經剛開始參加關鍵點辦公室設計,包含辦公家具、裝飾物,乃至接待室的一個小煙缸。在土地金貴的今日,把辦公室里全部的空間都運用上,將鐵皮文件柜、文件柜、檔案資料箱放進省空間的地區,在墻面上添擋板放物品,運用室內樓梯空間裝材料,貼緊墻紙的墻壁被墻上裝飾畫點綴得五顏六色,辦公室設計愈來愈零碎。
辦公室設計 http://www.backstreet-office.com/
辦公室裝修 http://www.le32.cn/
辦公室裝修設計 http://www.51backstreet.com/
辦公家具 http://www.backstreet-furniture.com/